Some of our favourite examples of our work, from smaller (tricky creative) and larger (2 storey and complex site new homes) Residential Projects


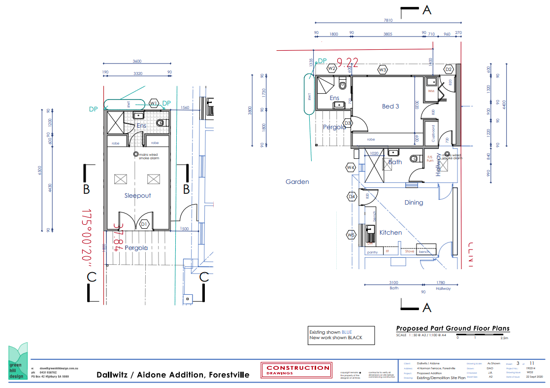
Forestville, New Rear Extension and Sleepout
A seamless rear addition to this house in inner suburbia, with new master suite and new bathroom addressing courtyard garden, and works to kitchen to tie in. Also a separate sleepout guest area for visitors, integrated into the whole.








Glenalta, 2 Storey House
A new 2 storey custom built home on an existing suburban block, using natural tones, stone and timber. Planning and construction drawings, designed in collaboration with interior designer.








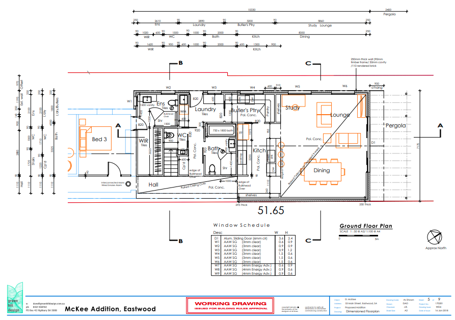
Eastwood, 2nd Storey Extension – Rear Extension
A 2 storey extension to an existing inner-suburban cottage. Upper floor with open ‘retreat’ area and open plan kitchen, dining, lounge at rear leading directly out to the garden.









Hahndorf, 2nd Storey/ Front Extension
A second storey rear extension with master bedroom/ensuite and balcony / front of house extension and consolidation into open plan living area, and general renovation of existing home, including new integrated carport.








Hyde Park, Multi Part Rear Extension & Garage
Multiple extensions and accessibility provided to existing house in inner suburbs






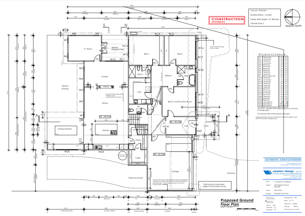
Fulham, 2 Storey House
A new 2 storey home on a subdivision in existing suburban setting. Slim site width as constraint, the clients very refined sense of cabinetry and interior design as a main driver.






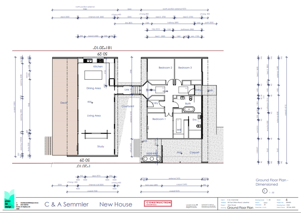
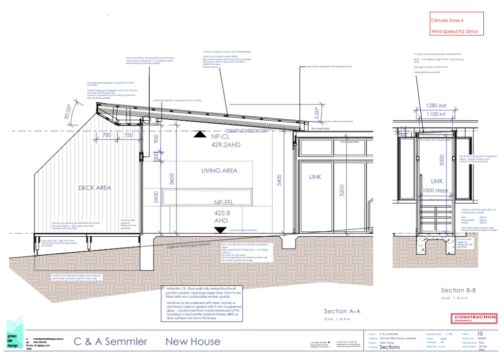
Lobethal Modern House
From an original design supplied by the client and then refined and expanded, to meet and exceed the multiple site constraints including bushfire overlay, site elevation, and the requirements for a unique and exciting design approach.







Blackwood Ancillary Accommodation
From a sketch design supplied by the client and then refined and detailed through to construction, to meet and exceed the multiple site constraints including bushfire overlay, site elevation and size constraints (60m2 max), and the requirements for buildability by the client and a small team.





